Kersland Street, Hillhead, Glasgow, G12 8BP

An eight bedroom first floor fully furnished HMO property situated within a traditional red sandstone tenement building in popular Kersland Street in the West End of Glasgow.

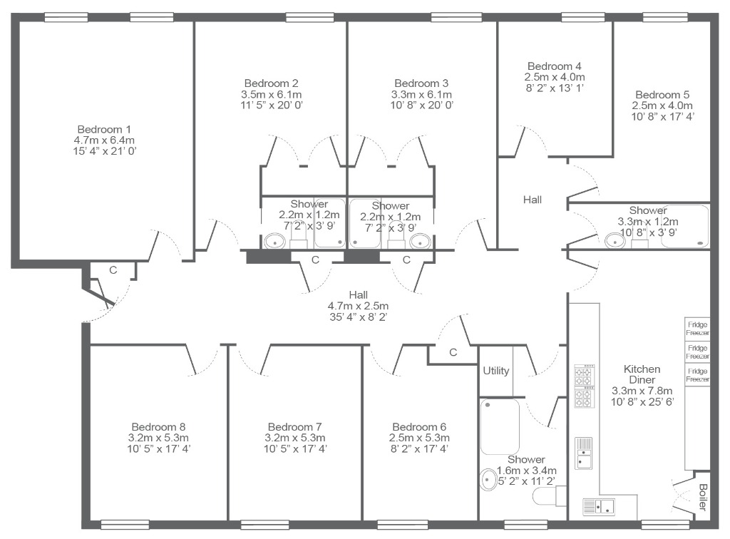
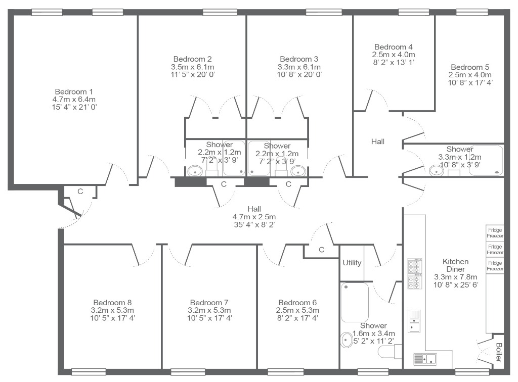
The accommodation is located on the preferred first floor and comprises of very large entrance hallway with four storage cupboards off, eight generously sized fully furnished double bedrooms two of which have en-suite shower rooms, spacious kitchen with dining area which is fully fitted and comes complete with appliances including three fridge freezers, microwave, seven burner gas hob with double electric oven and grill and dishwasher. There is a seperate utility room which houses the washing machine and tumble drier, and finally there are 2 modern shower rooms with white ceramics and walk in shower cubicles.

This property is offered to the rental market on a fully furnished basis and further benefits from gas central heating, secure door entry system, HMO license for eight people and communal back garden. The property also has single glazing.

Kersland Street is well situated for access to Byres Road, Hillhead subway station, Great Western Road and Botantic Gardens. Ideally located for students studying at Glasgow University as just a short walk from the accommodation.

Property available early October. Please head to our website at www.cairnestateagency.com and book a viewing slot. EPC rating: C. Council tax band: X, Landlord Registration Number: 418361/260/02321.

Details

An eight bedroom first floor fully furnished HMO property situated within a traditional red sandstone tenement building in popular Kersland Street in the West End of Glasgow.
Gas Central Heating
EPC rating: C

 

Available date: 22/10/2025
Rental Amount ( PCM ): £ 5,200
Rental type: Long term >6 months
Property Type: Flat
Deposit: £ 5,200

Flat

Property Type

x8

Bedrooms

x4

Bathrooms

Property Enquiry

Glasgow Branch (HQ)

Phone 0141 270 7878

Email enquiries@cairnletting.com

Glasgow
Scotland’s largest city, Glasgow has a lot to offer its inhabitants. Whether you’re a student studying in one of the city’s many colleges or universities; or whether you’re a professional working nine to five.

Tenants

Sign-up to our monthly newsletter, featuring our
Rental Property of the Month and the very latest news.

Translate »