Woodlands Drive, Woodlands, Glasgow, G4 9EQ

Presenting a traditional four-bedroom top-floor flat, enjoying attractive views over the leafy Woodlands Drive.

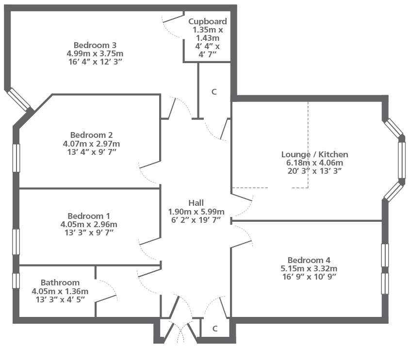
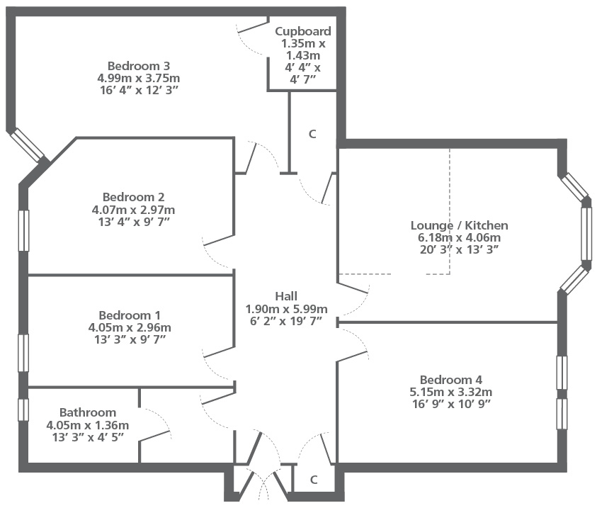
The accommodation comprises a welcoming hallway leading to four generously proportioned double bedrooms, all fully furnished. The bright and spacious open-plan living and kitchen area features a dining table and chairs, breakfast bar, and comfortable seating, making it ideal for both relaxing and entertaining. The modern fitted kitchen offers ample storage along with an integrated hob and oven.

The main bathroom is fitted with a contemporary three-piece suite, including a shower over the bath, wash hand basin, and WC. The property has also been freshly decorated throughout.

Further benefits include gas central heating, an HMO licence, and a highly convenient location close to Glasgow University.

Woodlands Drive is ideally situated in Glasgow’s sought-after West End, positioned between the City Centre and the University of Glasgow, with a wide range of local amenities nearby.

The property is available from mid June 2026. Please submit all viewing requests online, and a member of our team will be in touch. EPC rating: C. Council tax band: D, Landlord Registration Number: 299846/260/07491.

Details

Traditional four bedroom HMO top floor flat with traditional features located in the sought after Woodlands area of the West End.
Gas Central Heating
Parking: Street
Council tax band: D, EPC rating: C

 

Available date: 17/06/2026
Rental Amount ( PCM ): £ 3,000
Rental type: Long term >6 months
Property Type: Flat
Deposit: £ 4,500

Flat

Property Type

x4

Bedrooms

x1

Bathrooms

Property Enquiry

Glasgow Branch (HQ)

Phone 0141 270 7878

Email enquiries@cairnletting.com

Glasgow
Scotland’s largest city, Glasgow has a lot to offer its inhabitants. Whether you’re a student studying in one of the city’s many colleges or universities; or whether you’re a professional working nine to five.

Tenants

Sign-up to our monthly newsletter, featuring our
Rental Property of the Month and the very latest news.

Translate »