Elmbank Street, Charing Cross, Glasgow, G2 4NY

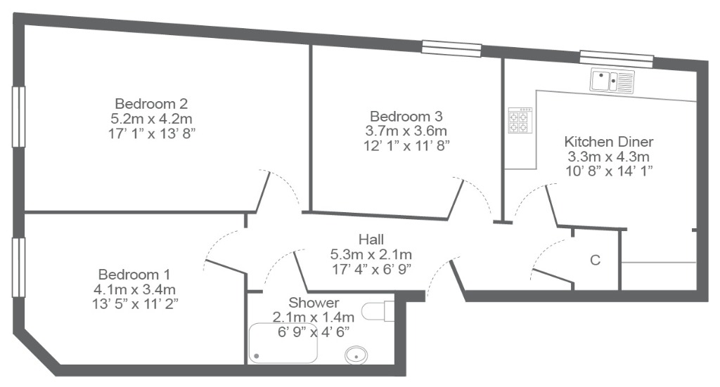
Three bedroom first floor furnished flat located within a traditional tenement red sandstone building near the Charing Cross area. HMO Licenced for three people.

Cairn are pleased to offer this spacious three bedroom property for rent on Elmbank Street, next to Charing Cross. The accommodation comprises; entrance hallway with storage cupboard off, three fully furnished double bedrooms, internal shower room with electric shower and bright dining kitchen with appliances including fridge freezer, washing machine, microwave and electric cooker.

This property further benefits from gas central heating, secure entry system and excellent location.

Available for entry late June 2026. EPC rating: D. Council tax band: X, Landlord Registration Number: 15954/260/30260.

Details

Three bedroom first floor furnished flat located within a traditional tenement red sandstone building near the Charing Cross area. HMO Licenced for three people.
Gas Central Heating
EPC rating: D

 

Available date: 26/06/2026
Rental Amount ( PCM ): £ 1,950
Rental type: Long term >6 months
Property Type: Flat
Deposit: £ 1,950

Flat

Property Type

x3

Bedrooms

x1

Bathrooms

Property Enquiry

Glasgow Branch (HQ)

Phone 0141 270 7878

Email enquiries@cairnletting.com

Glasgow
Scotland’s largest city, Glasgow has a lot to offer its inhabitants. Whether you’re a student studying in one of the city’s many colleges or universities; or whether you’re a professional working nine to five.

Tenants

Sign-up to our monthly newsletter, featuring our
Rental Property of the Month and the very latest news.

Translate »