Gray Street, Finnieston, Glasgow, G3 7TX

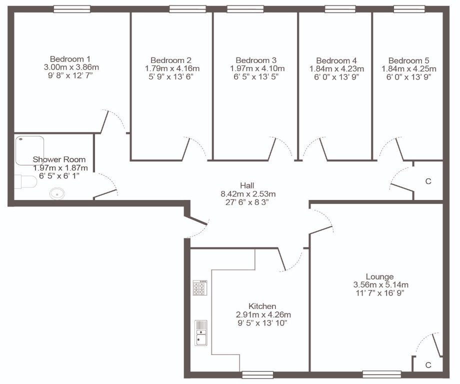
A well-presented first floor flat offering bright and spacious accommodation which comprises of large entrance hallway leading to five double bedrooms, spacious living room, generously sized and recently refurbished kitchen, along with shower room/WC. The property further benefits from gas central heating and HMO licence.

Gray Street is well positioned for access to Glasgow University, Kelvingrove Park and Glasgow City Centre.

Property available from early August
EPC rating: D. Council tax band: D, Landlord Registration Number: 86808/260/13401.

Details

Traditional first floor five bedroom HMO flat located within popular Finnieston area with HMO Licence for five people.
Gas Central Heating
Parking: Street
Council tax band: D, EPC rating: D

 

Available date: 04/08/2026
Rental Amount ( PCM ): £ 3,500
Rental type: Long term >6 months
Property Type: Flat
Deposit: £ 3,500

Flat

Property Type

x5

Bedrooms

x1

Bathrooms

Property Enquiry

Glasgow Branch (HQ)

Phone 0141 270 7878

Email enquiries@cairnletting.com

Glasgow
Scotland’s largest city, Glasgow has a lot to offer its inhabitants. Whether you’re a student studying in one of the city’s many colleges or universities; or whether you’re a professional working nine to five.

Tenants

Sign-up to our monthly newsletter, featuring our
Rental Property of the Month and the very latest news.

Translate »